發布時間:2022-08-13
空氣能采暖供暖供冷末端設計
8.1-般規定
8.1.1對流和輻射末端應符合對應產品標準的規定。
8.1.2選擇末端的形式時,應考慮住戶對系統功能的要求和使
用習慣。
8.1.3新建住宅安裝戶式空氣源熱泵冷暖 兩聯供系統宜采用地面輻射供暖:既有住宅安裝戶式兩聯供系統宜采
用散熱器供暖:間歇供暖的戶式兩聯供系統,宜采用輻射末端輔以風機盤管或制冷劑室內機同時供暖的形式。
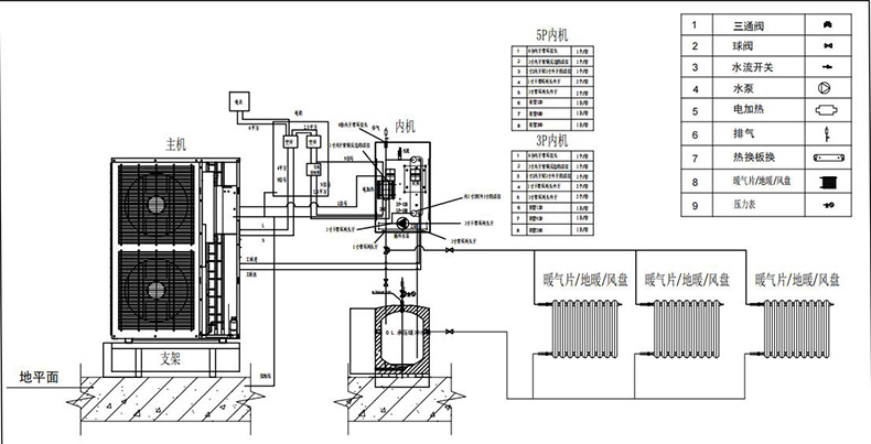
8.1.4冷熱水系統配套末端設計應按本導則附錄B選型。
8.1.5末端設備的末端供熱量應按本導則第 5.2.3條、第
5.2.4條和第5.2.9條確定;末端設備的供冷量應按本導
則第
5.3.5條和第5.3.7條確定。
8.1.6不同房間的末端設 備應能獨立控制。

8.2 熱水供暖末端
8.2.1地面輻射供暖應符合 下列規定:
1地面輻射供暖系統的末端設計、設備材料選擇和室溫控
制要求,應符合現行行業標準《輻射供暖供冷技術規
程》JGI
142的有關規定。
2地面輻射供暖形式可選用混凝土填充式、預制溝槽保溫板式、水泥砂漿預制填充板式和預制輕薄供暖板等。

3供暖地面的構造做法應根據其設置位置和加熱部件的類型確定,不同類型供暖地面構造做法可按本導則附錄
B1
選用、
供暖地面的構造應由下列全部或部分組成:
1)樓板或與土壤相鄰的地面:
2)防潮層(對與土壤相鄰地面);
3)絕熱層;
4)加熱部件;
5)填充層;
6)隔離層(對潮濕房間);
7)面層。
4 直接與室外空氣接觸的樓板或與不供暖房間相鄰的地面
作為供暖地面時,必須設置絕熱層。
5供暖地面構造應符合下列規定:
1)當與土壤接觸的底層地面作為輻射地面時,應設置絕
熱層;設置絕熱層時,絕熱層與土壤之間應設置防
潮層;
2)潮濕房間的混凝土填充式供暖地面的填充層上、預制溝槽保溫板或預制輕薄供暖板供暖地面的面層上,應設置隔離層。
6絕熱層熱阻和厚度、 填充層材料和厚度應符合現行行業
標準《輻射供暖供冷技術規程》JGJ 142的規定。
7供暖地面 面層宜采用熱阻小于0. 05m2 . K/W的材料。
8
混凝土填充式供暖地面的加熱部件,其填充層和面層構
造應符合下列規定:
1)
豆石混凝土填充層上部應根據面層的需要鋪設找平層;
層找平層。
2) 沒有防水要求的房間,水泥砂漿填充層可同時作為面
9預制溝槽保溫板輻射供暖地面直接鋪設木地板面層時,應采用鋪設有均熱層的保溫板,且在保溫板和加熱管
之上宜再鋪
設一層均熱層。
10
來用供暖板時,房間內未鋪設供暖板的部位和敷設輸配管的部位應鋪設填充板:采用預制溝槽保溫板時,分水器、集水
器與加熱區域之間的連接管,應敷設在預制溝槽保溫板中。
11當地面荷載大 于供暖地面的承載能力時,應由土建設計人員采取加固措施。
12分水器、 集水器分支環路不宜超過8路,分、集水器斷面流速宜小于0. 8m/s。
13 戶內各主要房間應單獨設置環路,同時使用的較小房間可做同一環路。連接同一分水器、集水器上的各環路的長度宜接
近,各分支路加熱管長度不宜超過120m。
14供暖地面加熱管的材質和壁厚的選擇,應根據工程的耐久年限、管材的性能以及系統的運行水溫和工作壓力等條件
確定。
15加熱管 內的水流速度不應小于0.25m/s,且不應大于
0.6m/s。
16加熱管敷設可采用回折型、平行型、雙平行型等布管形式,繞行時不得小于管材的最小彎曲半徑。加熱管宜
采用等間距布置,靠近外墻的間距也可適當減少。對于既有住宅增設供暖設施的房間,在安放落地家居的位置應減少加熱管的敷設。
17 供暖地面單位面積散熱量應按本導則附錄B.2計算,并應考慮家具遮擋對地面散熱的影響。
8.2.2散熱器供暖應符合 下列規定:
散熱器不宜采用鑄鐵散熱器,宜選擇輕質的鋼制、鋁制或銅鋁復合散熱器;散熱器數量的確定應符合現行國家標準《民用建筑供暖通風與空氣調節設計規范》GB 50736的有關規定,并根據散熱器連接形式、安裝方式、組裝片數、熱水流量和進出口溫度等因素進行修正;
3散熱器宜布置在外窗臺下,也可按使用要求布置在內墻
側;散熱器應明裝,散熱器連接支管應安裝恒溫閥;
4室內系統宜采用分,集水器對各組散熱器進行連接,當
采用分,集水器對各組膠熱器進行連接時,
散熱器連接支管可不安裝恒溫閥;
5
散熱器散熱量應按本導則附錄B.3計算。
8.2.3
風機盤管供暖應符合下列規定:
1以供暖為主的風機盤管宜采用立式落地布置:
2
風機盤管規格應根據房間熱負荷、設計供回水溫度等確定;
3采用風機盤管供暖時,應采取必要措施優化室內氣流組織,減小溫度梯度;
4風機盤管供熱額定值可按本導則附錄B.4計算,戶式兩聯供系統宜按風機盤管中檔風量性能進行選型設計。
8.3供冷末端
8.3.1風機盤管的安裝位置應根據用戶對供暖和供冷的使用要求確定,當以夏季供冷為主的系統時,風機盤管
應采用臥式安裝在房間的上部。
8.3.2風機盤管規格應根據房間冷負荷和設計供回水溫度等確定。
8.3.3風機盤管閥門、 進出水管及冷凝水管應采取保溫措施以防凝露。
8.3.4
風機盤管供冷額定值可按本導則附錄B.4計算。
8.3.5空氣源多聯式空調(熱泵)熱水系統室內制冷劑末端的設計應符合現行行業標準《多聯機空調系統工程技術規程)
JGI
174的有關規定。

聚陽王牌空氣能始于2003年,專注空氣能研發,生產,制造,銷售,服務一體的現代化工廠,目前產品種類分為家用空氣能熱水器,商用空氣能熱水機組,超低溫空氣能熱水機組,空氣能采暖煤改電機組,光伏熱泵采暖機組,空氣能烘干機組,電梯空調,大型工業廠房降溫水空調等熱泵產品。
產品應用廣泛,適用于學校,酒店,賓館,醫院,工廠宿舍,工地,小區集中供暖,單位采暖,農副產品烘干,北方冬季家庭采暖等,聚陽新能源從2017至今,連續中標北方地區采暖煤改電項目,在空氣能采暖行業中,聚陽王牌獲得北方老百姓的認可,成為了空氣能采暖行業的知名品牌。
同時聚陽新能源誠邀全國有志于加盟空氣能新能源行業的實力商家加盟聚陽王牌空氣能,分享空氣能新能源行業的千億商機,為碳中和節能減排做貢獻。
